VREMEA CAPELELOR. Se construiesc noi lăcașuri de reculegere și une cimitir multiconfesional
Membrii Comisiei Tehnice de Amenajare a Teritoriului și Urbanism (CTATU) din cadrul Consiliului Județean vor dezbate, în ședința de joi, 20 noiembrie, de la Consiliul Județean Cluj două proiecte care prevăd construirea unor lăcașuri de rugăciune și reculegere.
Tot joi, în ședința CTATU, va fi discutat și proiectul privind construirea unui cimitir multiconfesional în Florești.
Media9 a oferit, în premieră pentru presa clujeană, detalii despre acest proiect, care pot fi consultate mai jos:
Se mai face un cimitir. Va fi multiconfesional, lângă pădure, pe o suprafață de 6,5 hectare
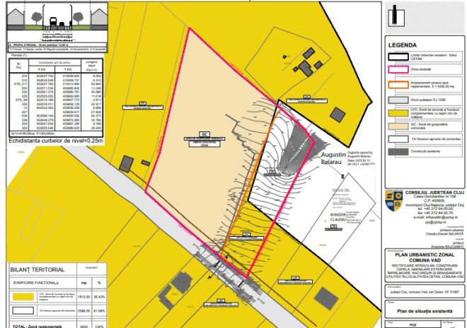
Primul lăcaș de reculegere și rugăciune dintre cele două, conform proiectelor din lista anunțată pentru ședința de joi, este propus în comuna Vad. Aici, administrația locală propune construirea unei capele pe o suprafață de 4.200 de metri pătrați. Zona studiată se află în satul Cetan, comuna Vad, între râul Someș – în partea nord – estică și între Pădurea Vulpei – în partea sud – vestică, situată în imediata apropiere a drumului județean DJ 109 E.
Prin PUZ – ul prezentat de proiectant, se propune zone amenajate de spații verzi cu plantații de arbuști de talie mică și medie, cu alei pietonale, cu zone de relaxare și recreere. Spațiul verde va avea o pondere de aproximativ 60 %, conform documentației tehnice.
Proiectul a fost realizat de către echipa condusă de arhitectul șef al județului Cluj, Claudiu Salanță.








Un alt proiect prevede construirea unui ansamblu parohial în localitatea Tăuți, comuna Florești, pe o suprafață de 5.187 de metri pătrați.






Beneficiara investiției este Parohia Ortodoxă „Sfinții Arhangheli Mihai și Gavriil” din Tăuți, comuna Florești. Proiectul a fost realizat de biroul TRIARH din Cluj, condus de către Radu Spânu, fost arhitect șef al județului Cluj.











